'); " height="0" width="0" style="display:none;visibility:hidden">
Exceptional architecturally designed new homes and high end alterations
Bay of Plenty & South Waikato

Pope Housing and Construction Plans...

Pope Housing and Construction offer a range of their own home plans. Give us a call to arrange a time to discuss any of the plans below...


Pope Alexander




Click to enlarge plans to view

Levels x 2, Size: 343m2, Living x 3, Bedroom x 5, Study x 1, Bathrooms x 4, Car x 2, Scullery

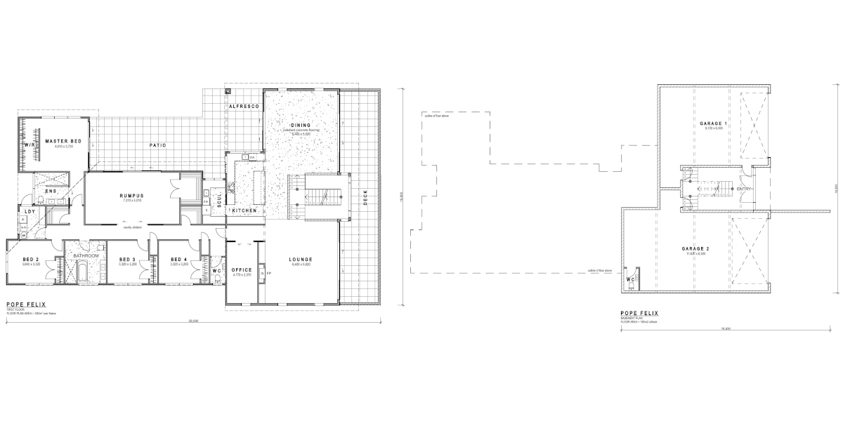
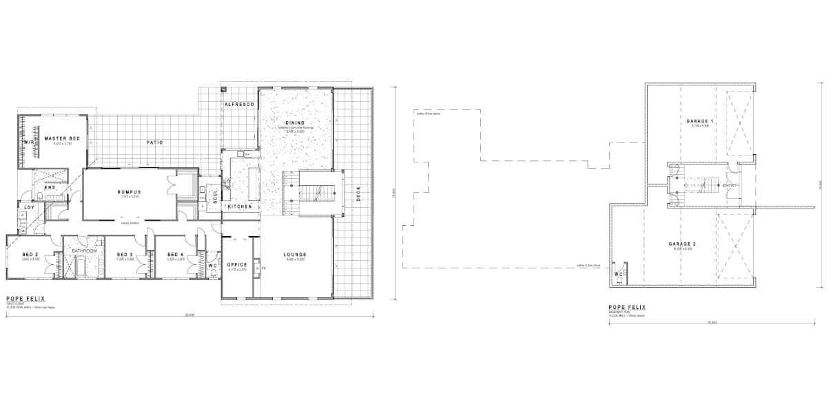
Pope Felix




Click to enlarge plans to view.

Levels x2, Size 460m2, Living x3, Bedroom x4, Garage x4 plus workshop, Study x1, Bathrooms x2, Separate toilets x2, Scullery x1.

Pope Benedict




Level x 1, Size 231m2, Living x 2, Bedrooms x 4, Study, Bathrooms x 2, Car x 2, Computer nook, Scullery

Pope Constantine




Level 1, Size 205m2, Living x 2, Bedrooms x 4, Bathrooms x 2 plus separate toilet, Car x 2

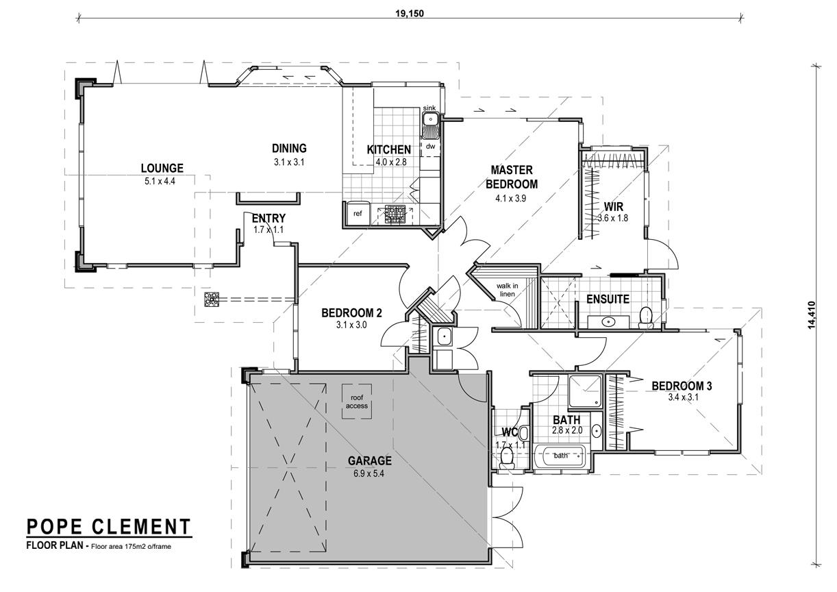
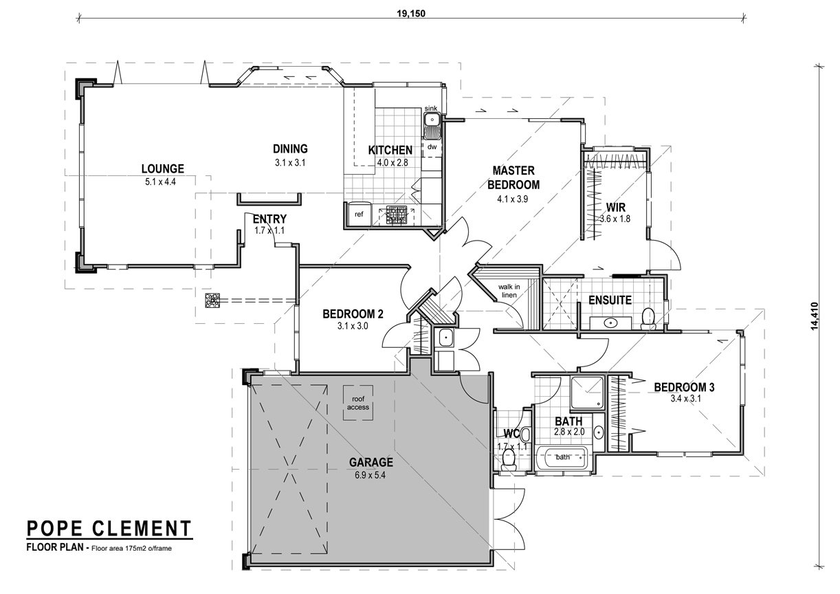
Pope Clement




Level x 1, Size 175m2, Living x 1, Bedroom x 3, Bathroom x 2 plus separate toilet, Car x 2, Attic space

Pope Innocent




Level x 1, Size 222m2, Living x 2, Bedrooms x4, Bathrooms x 2 plus separate toilet, Car x 2, Workshop

Pope Julius




Level x 1, Size 307m2, Living x 3, Bedrooms x 4, Study, Bathroom x 2 plus separate toilet, Scullery, Attic space, Car x 2.5

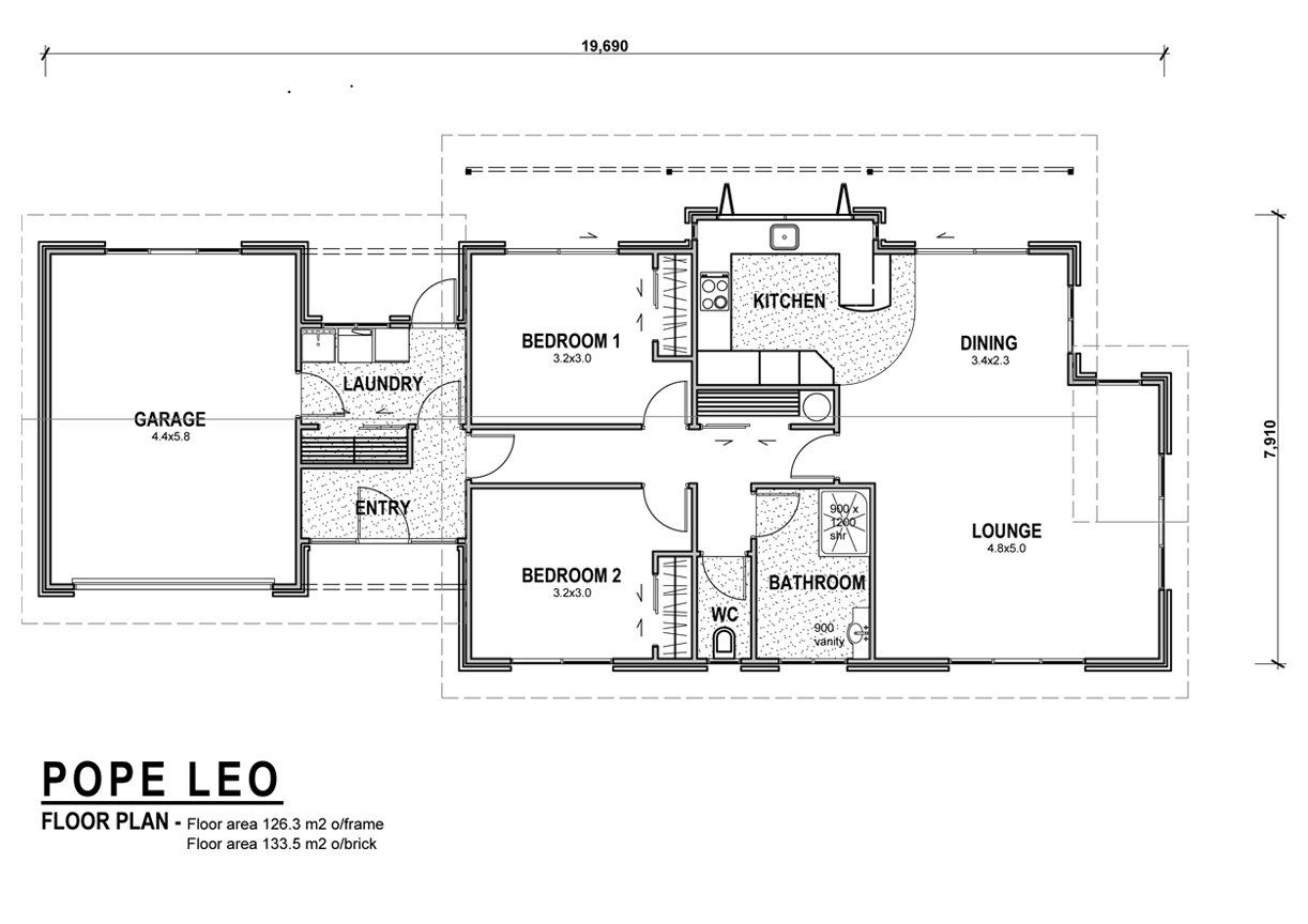
Pope Leo




Level x 1, Size 126m2, Living x 1, Bedrooms x 2, Bathrooms x 1 plus separate toilet, Car x 1

Pope Pius




Level x 1, Size 170m2, Living x 1, Bedrooms x 3, Bathrooms x 2, Car x 2

Pope Valentine




Level x 1, Size 238m2, Living x 2, Bedrooms x 4, Bathrooms x2 plus separate toilet, Computer nook, Car x 2

Would you like one of the Pope Housing and Construction team to contact you? Fill in the form and we will be in touch as soon as we can.

Why Choose Us?

Expert consultation
With over 20 years in the industry, we know how to help clients navigate the building process. 

Personalised service
We prioritise consistent personal service, ensuring that you see familiar faces, creating a positive and comfortable building journey. 

Transparent communication
As well as regular updates throughout the process, you'll receive a custom video at completion showcasing your project's journey.

Qualifications and Affiliations
We are Licensed Building Practitioners (LBP), and we are members of the New Zealand Certified Builders Association (NZCB) offering the Halo 10 year guarantee.

Happiness guarantee
We will stand by our communication, service and quality to ensure that your project runs smoothly, on time and to budget. 

Exceptional architecturally designed new homes and high end alterations
Bay of Plenty & South Waikato